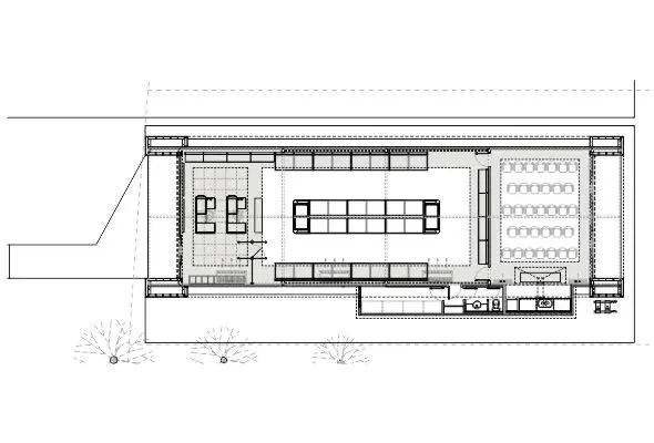
Local de venta al público de la cadena ARTICO donde se ponen a su disposición todos los producto de la empresa. Cuenta además con una sala para eventos donde se podrá realizar degustaciones de platos preparados en el mismo local.
ClienteOsan S.A.
UbicaciónConstellation esq. Caisaya
Fecha proyecto07/2019
Superficie proyecto242 m²
InversiónUSD 250.000
Conozca otros proyectos
Como proyectistas evaluamos constantemente los productos y su impacto en los tiempos y costos.



