DUCSA Pontinvrea

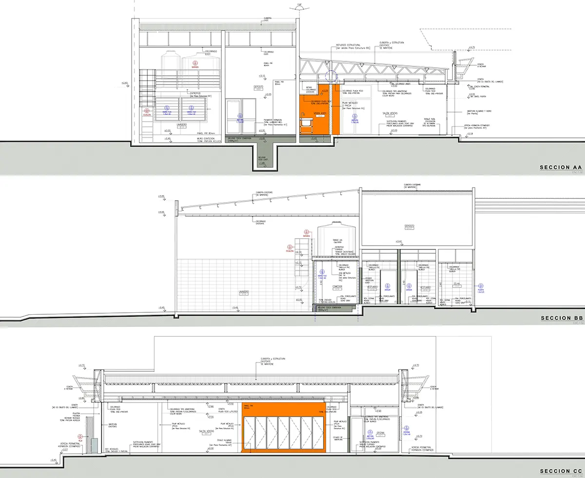
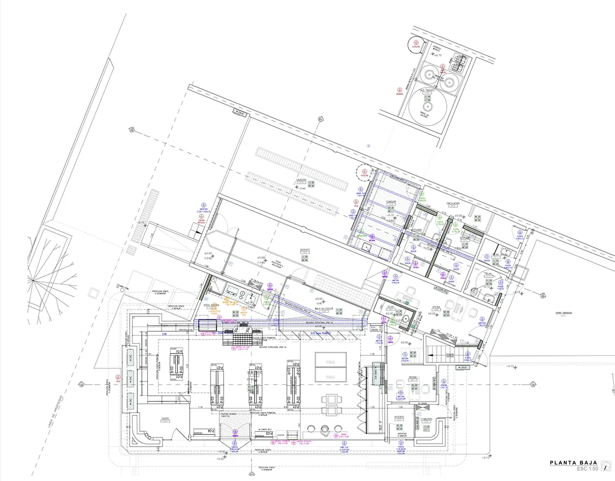
Reforma de edificio existente, para alojar local de la cadena de tiendas 360º perteneciente a DUCSA / ANCAP, depósitos y servicios para el personal en subsuelo, tienda en planta baja y oficinas de ANCAP. Instalaciones de frio RETAIL, aire acondicionado, eléctrica, cctv, audio, alarma, etc.

ClienteCelemyr S.A.
UbicaciónGral. Flores esq. Av. Artigas
Fecha proyecto2023
Superficie proyecto331,60 m²
InversiónUSD 550.000

Compartir en redes